Bilocale in vendita

Cesano Boscone, Via Armando Diaz
€ 150.000
2 locali 2 locali
54 Mq 54 Mq
1 bagno 1 bagno

Bilocale in vendita

Cesano Boscone, Via Armando Diaz

Descrizione annuncio

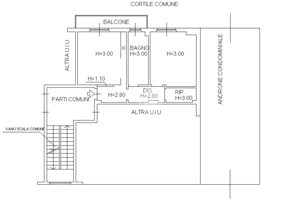
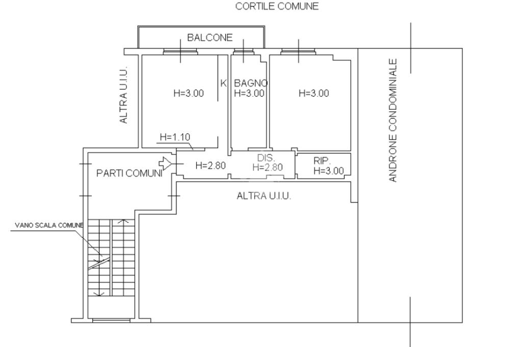
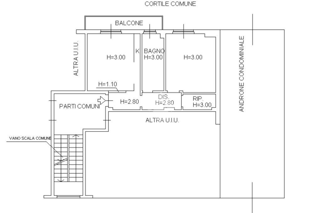
In palazzina di metà anni '60, si propone appartamento completamente ristrutturato sito al piano rialzato, comodo per mezzi e servizi che il comune mette a disposizione.

Soluzione composta da ingresso sul luminoso soggorno con cucina a vista e servito da balcone.
Dal disimpegno si accede alla zona notte costituita da spaziosa camera matrimoniale, bagno e pratico ripostiglio.

Completa la proprietà, il solaio.

Caratteristiche: soffitti insonorizzati, aria condizionata (2 split) e piano ad induzione.

Mostra tutto

Nelle vicinanze

Trasporto pubblico Trasporto pubblico
Bisceglie
Bisceglie
1,7 Km
Inganni
Inganni
2,4 Km
Milano San Cristoforo
Milano San Cristoforo
2,6 Km
Lorenteggio
Lorenteggio
1,6 Km
Via Gonin - Via Molinetto di Lorenteggio
Via Gonin - Via Molinetto di Lorenteggio
1,7 Km
Ricariche auto elettriche Ricariche auto elettriche
Centro Commerciale La Torre - distributore IP
610 m
LIDL Milano Forze Armate
1,7 Km
A2A Isola Digitale Bisceglie
1,7 Km
Lidl Milano Lorenteggio
1,9 Km
EnelX EVAD Sede Enel Corsico
2,0 Km
Scuole Scuole
Istituto Comprensivo Alessandrini
120 m
Scuola Primaria Dante Alighieri
390 m
Scuole
470 m
KES Centro Linguistico
490 m
Scuola secondaria di primo grado statale "Leonardo da Vinci"
670 m
Farmacia Farmacia
Farmacia Spirito Santo
160 m
Farmacia Camera
420 m
Farmacia
420 m
Farmacia Pasubio
780 m
Farmacia Comunale
1,4 Km
Ospedali Ospedali
Casa di Cura Ambrosiana
730 m
Ospedali
2,1 Km
Ospedale San Carlo Borromeo
3,0 Km
Supermercati Supermercati
Il Gigante
480 m
Ipercoop
720 m
Dpiù discount
770 m
Auchan
1,3 Km
Simply Market
1,3 Km
Negozi Negozi
Habitu
120 m
Cereda
140 m
MikroMarket
150 m
L'angolo del pane
170 m
Negozi
210 m
Bar Bar
Erica
680 m
Jolly Bar
850 m
Bar
1,0 Km
Cake l’HUB
1,2 Km
King Toast Cafè
1,3 Km
Ristoranti Ristoranti
Il Calamaro
220 m
Saloon 4 Luglio
260 m
Xier 3
300 m
Dai Siciliani
380 m
La Dolce Vigna
390 m
Mostra tutto

Caratteristiche

Rif.:
61127792
Piano:
Rialzato di 5
Totale piani:
5
Balconi:
1
Camere da letto:
1
Arredamento:
Assente
Mostra tutto
Prezzo Prezzo
€ 150.000
Rata mutuo Rata mutuo
€ 687 / mese
Spese annue Spese annue
€ 1.400
Proponi il tuo prezzoProponi il tuo prezzo
Immobile valutato con TecnoValore

Classe Energetica

F
F
F
F
F
F
F
F
F
EP globale non rinnovabile:
285.72 kW h/m² anno
EP globale rinnovabile:
0.86 kW h/m² anno
EP invernale del fabbricato:
EP estiva del fabbricato:
Anno di costruzione:
1967
Riscaldamento:
Centralizzato
Tipo impianto:
A radiatori
Tipo alimentazione:
Metano

Ti interessa visionare l'immobile?

Fissa un appuntamento  Fissa un appuntamento

Richiedi informazioni

* Questi campi sono obbligatori

Calcola il tuo mutuo

Semplice e senza impegno
Anticipo

( % )
Mutuo

( % )

pochi semplici passi

inserisci i tuoi dati
Questionario completato
Grazie per aver richiesto un appuntamento senza impegno con un nostro Consulente del Credito e Assicurativo.

Hai inserito correttamente tutti i dati necessari e a breve riceverai una e-mail con un link da convalidare per inviare i tuoi dati.
Affiliato
Nuova Cesano Sas
Via Milano, 15 20090 Cesano Boscone (MI)

Il nostro staff


  • Vincenzo Cosoleto
    Affiliato
Via Milano, 15 20090 Cesano Boscone (MI)
Zona: Cesano Boscone
Mostra su mappa
Orari: Da Lunedì a Venerdi - 09:00 - 12:30 / 14:30 - 20:00Sabato 09:00 - 12:30 /14:30 - 17:30
Affiliato
Nuova Cesano Sas
Via Milano, 15 20090 Cesano Boscone (MI)

2025 Tecnocasa Franchising S.p.A. - P. IVA 08365160152 - Via Monte Bianco 60/A 20089 Rozzano (MI). Ogni agenzia ha un proprio titolare ed è autonoma. Privacy policy | Policy utilizzo | Cookie policy